Casa alla Città Giardino

Rome IT, 2023

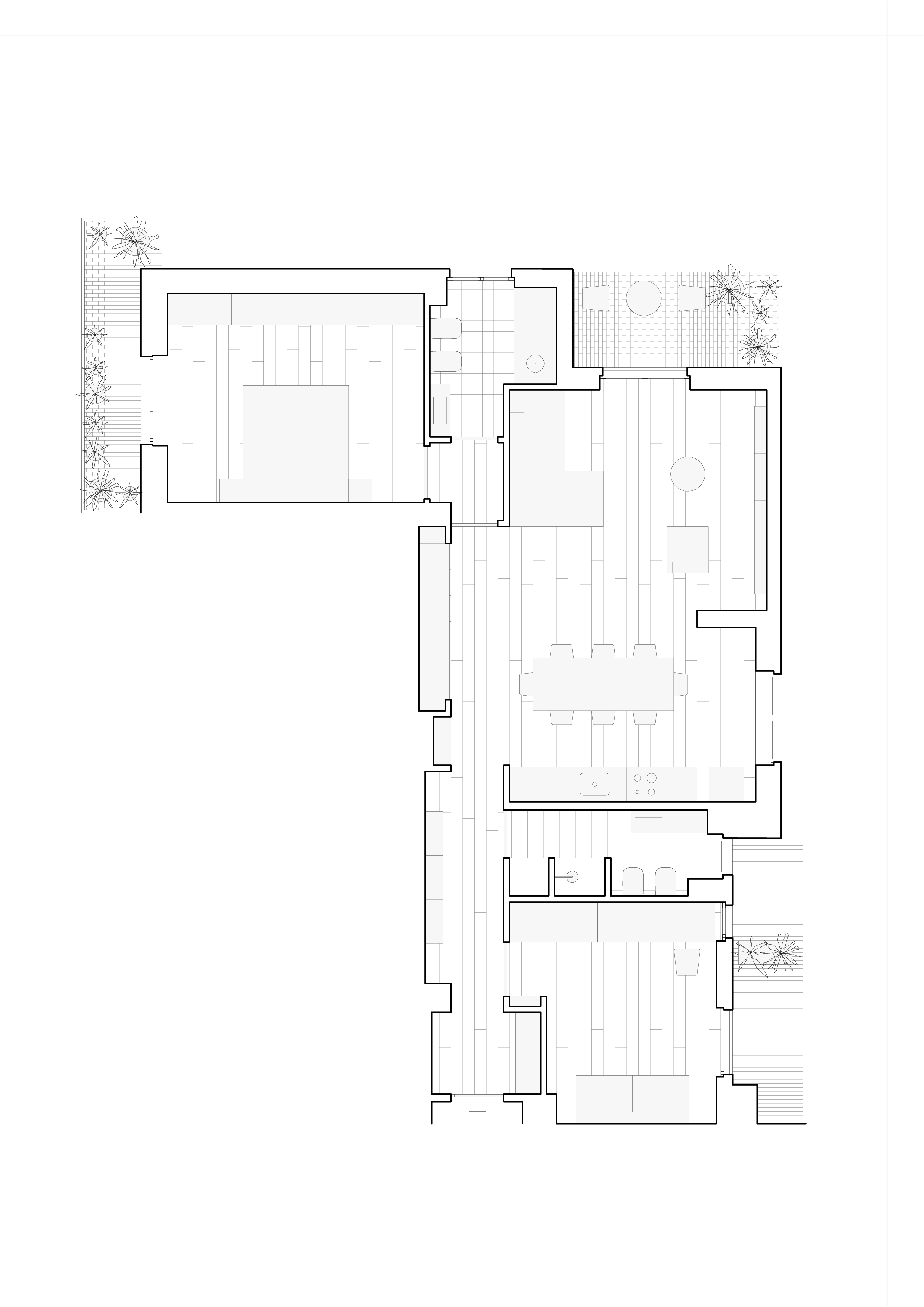
Renovation of a private flat, 120 sqm

The flat is situated within a residential palazzina in the unique setting of Città Giardino, a Roman neighbourhood characterised by detached villas and gardens oriented towards the park alongside the Aniene River.

​The brief from the clients - a family of two - was to reconfigure the layout to maximise the living area and capitalise on the park views. A bright open-plan space was created to serve as the heart of the home.

​Particular attention was given to integrated bespoke joinery to optimise storage and avoid the need for separate utility rooms; an existing wardrobe was restored, while a new one was built into a niche uncovered during the demolition.

The finishes were chosen to bring warmth and softness to the interiors. White walls and timber flooring are complemented by blue and white ceramic tiles in the bathrooms, catching the glow of the natural light coming from the surrounding parkland.

_Concept design, Design development

_FF&E, Bespoke joinery

_Design supervision, Artistic Direction

With: Arch. Roberto Mercurio

(Bidding, Building permits, Site management and supervision)